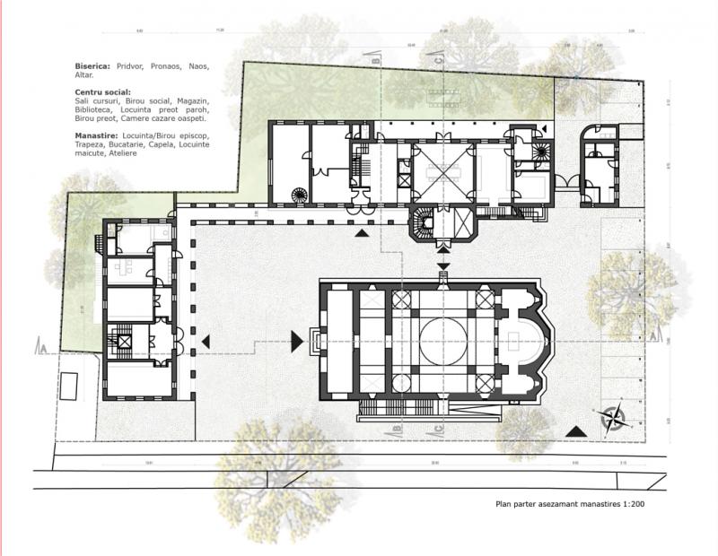
Proiectul viitorului Aşezământ bisericesc - stadiu 20.11.14 / Entwurf des künftigen Kirchenzentrums - Stadium 20.11.2014
Donează pentru Așezământ
Programul slujbelor
Toate slujbele au loc la Așezământul Bisericesc (Kastelburgstr. 84-88, 81245 München).
Luni, Joi, Sâmbătă
08:00 - Utrenia
18:00 - Vecernia
Miercuri
08:00 - Utrenia
18:00 - Rugăciunea lui Iisus
Vineri
08:00 - Utrenia
18:00 - Sf. Maslu
Notă: În anumite zile, este posibil să intervină schimbări. Pentru a vizualiza programul lunii curente, vă rugăm să mergeți aici










